



Listado por Weichert SoCal
La Casa Unifamiliar en Venta ubicada en Harness St, Spring Valley, California 91977, Estados Unidos actualmente está en ventaHarness St, Spring Valley, California 91977, Estados Unidos está listado paraUSD1,800,000.Esta propiedad tiene 5 dormitorios, 3 baños características.
USD1,800,000
Casa Unifamiliar en Venta, Harness St, Spring Valley, California 91977, Estados Unidos
- Nº De MLS375045386
- Dormitorios5
- Cuartos de baño3
Características de la propiedad
Propiedad
- Ubicación: Subdivisión
Lote/Terreno
- Cerca: Ninguna
Construcción
- Año de construcción: 1934
- Techumbre: Teja De Madera
Estacionamiento/Garaje
- Descripción del garaje: Garaje Anexo
Dormitorios
- Dormitorios: 5
Cuartos de baño
- Total de baños: 3
- Baños completos: 3
Calefacción y aire acondicionado
- Sistema de calefacción: Gas Natural
Servicios públicos
- Otros servicios: No Hay
Descripción
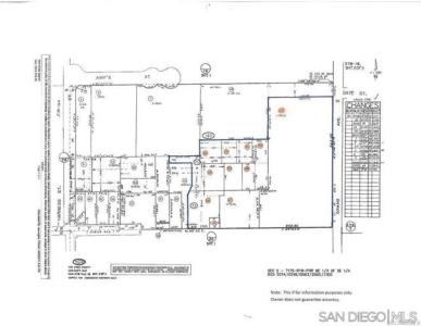
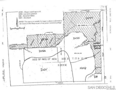
Unique development opportunity: 13 parcels totaling 8 acres in San Diego County. Includes 3 tenant-occupied homes in poor, likely uninhabitable condition—not up to code. Sold as vacant land; no warranties made. Part of the land is undevelopable due to open space easement and topography. Preliminary talks with San Diego County suggest potential for up to 26 lots (6,000 SF each) could be approved. Buyer to verify all info; seller and broker make no guarantees on approvals or development. Buyers & buyers agent to verify all herein prior to submitting an offer! APN #1- 578-160-05-00 APN #2 - 578-160-40-00 APN #3- 578-160-41-00 APN #4- 578-160-42-00 APN #5- 578-160-57-00 APN #6- 578-160-58-00 APN #7- 578-160-61-00 APN #8- 578-160-62-00 APN #9- 578-160-63-00 APN #10- 578-160-66-00 APN #11- 578-160-69-00 APN #12- 578-160-71-00 APN #13 -578-160-72-00
Ubicación
Harness St, Spring Valley, California 91977, Estados Unidos